Addition

Hello again,

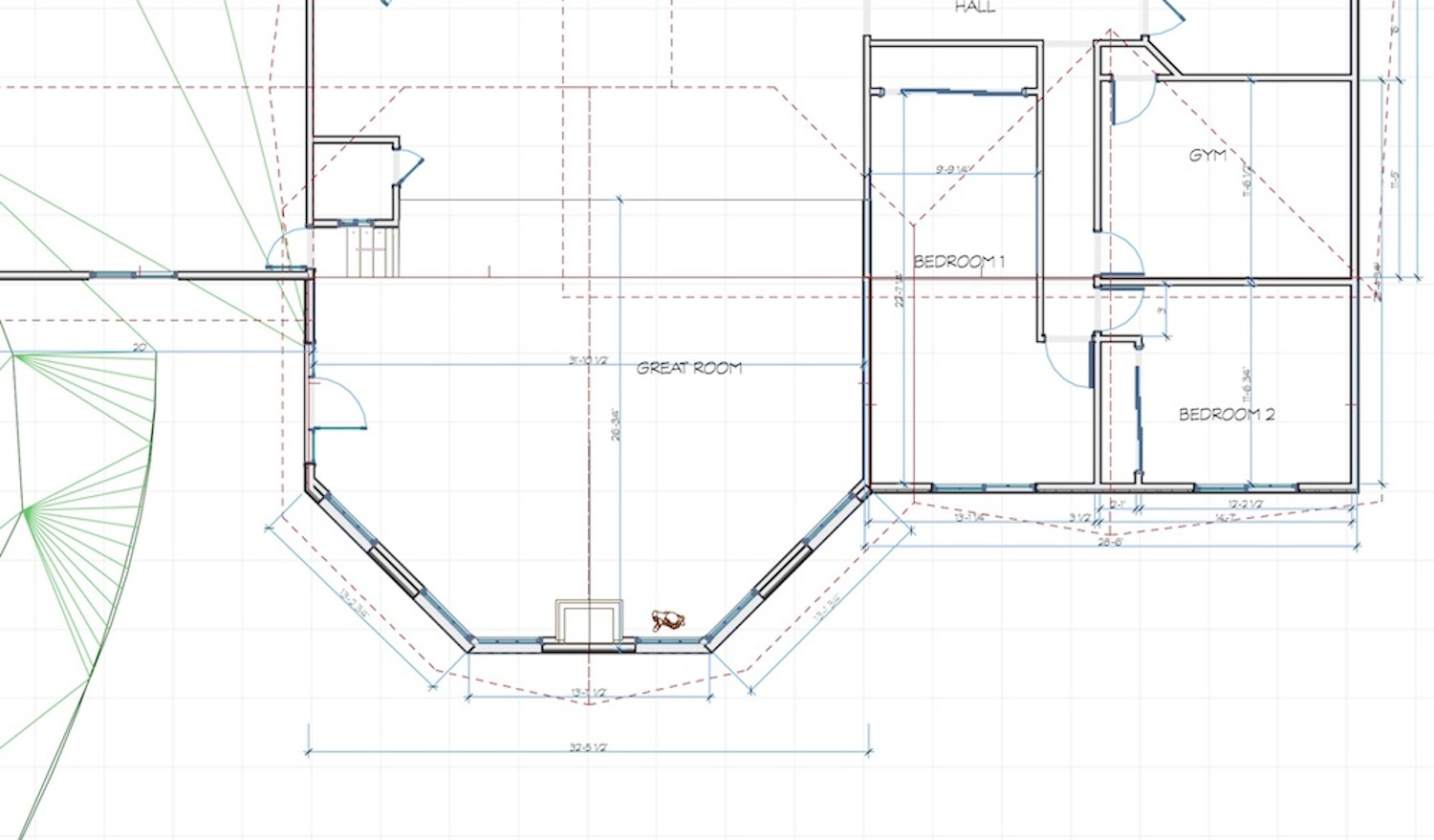
As I said in my earlier email, I've been working on some other variations on your addition. Below, are the two which I felt were most successful. Please remember that at this point we are trying to solidify a concept or form for the addition. Window and door sizes and placement, surface materials, and etc we can change and move around at a later stage but at this point we should try to focus on what shape we want the addition to be. Below are the two floor plans of the models in pdf at 1/8" scale - click to download. Below that are the images......

Open Floor plan c pdf

Open Floor plan j pdf

Plan C

c0

c1

c2

c3

c5

c6

c7

Plan J

j0

j1

j2

j3

j4

j5

--------------------------------------------------------------------------------

November 7 2013

Below are images from two more concepts for your addition. I have maintained the 45 degree walls as you requested, and have eliminated the fireplace chimney:

9

9.1

9.2

9.3

9.4

9.5

9.6

9.7

This next model, is the same in floor plan as the previous one except the windows have been moved and the walls are about 2' shorter:

8.1

8.2

8.3

8.4

8.5

8.6

Roofs

The last two models differ in their wall heights and window placement, but the roof would be similar in both cases. There are 2 roof solutions, below are 3 images for each of the solutions. The first is a gable facing north, the second is a hip facing north.

doyelroof1

doyelroof2

doyelroof3

doyelroof2.1

doyelroof2.2

doyelroof2.3

November 15, 2013

Hello....I have drawn 5 new models based on the the photograph you have provided to Jeremy.

In this first one, I have taken one of the earlier models and have made it taller (walls approximately 18" high).

dk1.1

dk1.2

dk1.3

Next is same shape but different windows (we can focus on window sizes and placement more critically once we have a basic shape down.

k2.1

k2.2

k2.2

k2.3

I have also made a version with straight walls, again these walls are 18' high.

k3.1

k3.2

k3.3

In this next version, I have split the exterior of the great room into two parts to make the tower more slender and therefore make it appear taller. On the inside, the separation between the tall space and the lower space would be in line with the entry wall:

k4.1

k4.2

k4.3

This next version is a variation of the last:

k5.1

k5.2

k5.3

k5.4

November 24, 2013

Hello again......so here are some more models. The first one is the one you liked, changed to what you wished. The roof is now at a height of 12' instead of 17" as before. I've also added the extra windows.

The second is completely in a different direction and the third a variation of the second......

k5.4

k5.4

k5.4

k5.4

k5.4

k5.4

k5.4

k5.4

k5.4

k5.4

k5.4

k5.4

k5.4

k5.4

k5.4

December 1, 2013

Hello again......so here are 4 more models. They are all variations on the last one you liked. I will start with the one you suggested (the bay effect) I hope I got what you meant right....

dk1.3

dk1.3

dk1.3

dk1.3

dk1.3

This next one, I have stepped out the tower approximately 2'. I have also reduced the size of the roof above existing......

dk1.3

dk1.3

dk1.3

dk1.3

dk1.3

dk1.3

In this one, the roof is independent from existing and look like the water would not drain- but I can make it work with crickets. Although it may look akward it has the advantage that it would allow us to insert windows in the high wall facing North and would therefore make a great effect inside the structure.

dk1.3

dk1.3

dk1.3

dk1.3

dk1.3

In this final one, I have reworked the roofs to reduce their size and to blend with the existing architecture. The center portion of the roof would probably never be seen from the ground.

dk1.3

dk1.3

dk1.3

dk1.3

dk1.3

dk1.3

dk1.3

dk1.3

dk1.3